 
 
 
 
 
 
 
 
 
 
 
 
 
 
Canyon House
Rustic CanyonLos Angeles, CA
General Contractor
GLC
Landscape Design
Mathew Brown
Abi Cohen
Photograpghy
Yoshihiro Makino
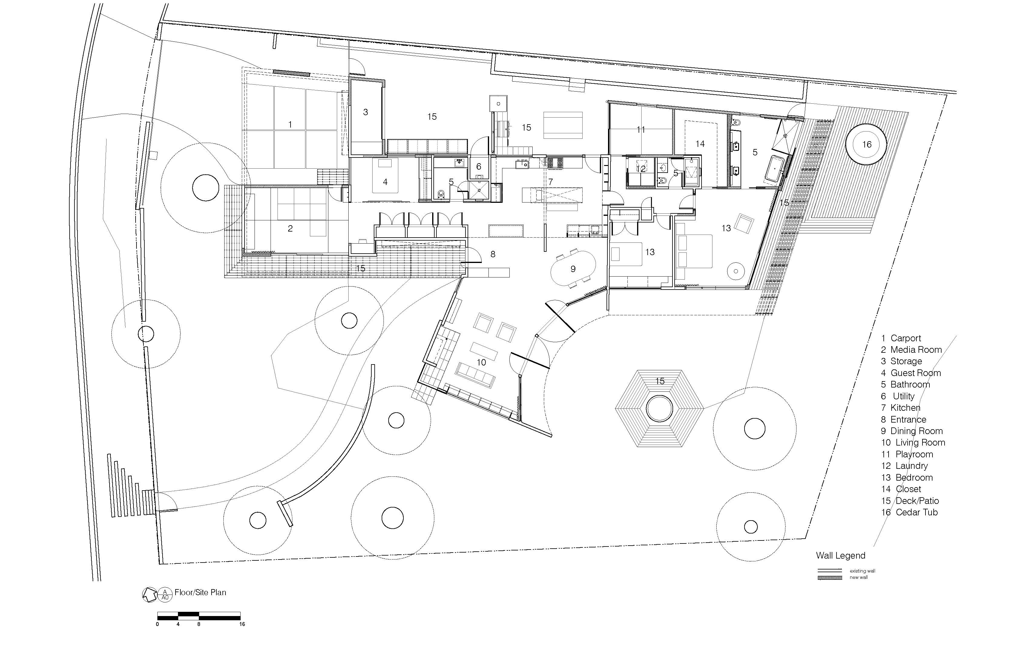
The Canyon House sits in the hidden coastal neighborhood of Rustic Canyon in Los Angeles. A unique micro-climate with an abundance of mature redwood and eucalptus trees. This area is packed with immaculate mid-century homes which have been carefully preserved and protected by their residents for decades.
Originally designed by Architect Kenneth Lind in the late 1950s, the house was owned and loved by the family who commissioned the design for over 60 years. Hidden behind a curved driveway and drive through carport with Rustic Creek running along the back of the property, the existing structure was dark, cold and mostly disconnected from the surrounding, wooded site. Capturing the feeling of warmth from the dappled light, while pulling in the dramatic beauty and texture of the mature redwood trees drove the design. The movement of the sun from the most private spaces to the more public areas follows the occupants as they circulate through the spaces daily. The surrounding landscape allows moments for public and private gathering, while evoking a northern California enclave.
Featured in Mid-Century Home
Originally designed by Architect Kenneth Lind in the late 1950s, the house was owned and loved by the family who commissioned the design for over 60 years. Hidden behind a curved driveway and drive through carport with Rustic Creek running along the back of the property, the existing structure was dark, cold and mostly disconnected from the surrounding, wooded site. Capturing the feeling of warmth from the dappled light, while pulling in the dramatic beauty and texture of the mature redwood trees drove the design. The movement of the sun from the most private spaces to the more public areas follows the occupants as they circulate through the spaces daily. The surrounding landscape allows moments for public and private gathering, while evoking a northern California enclave.
Featured in Mid-Century Home
 
 
 
 
 
 
 
 
 
 
 
 
 
 
